Leaders of Import and export packaging solutions
ESTD SINCE: 1966
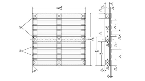
Chemical pallet CP8
The chemical industry has standardised the pallets it uses into nine different types. In the chemical pallet (CP) system, standardised CPs are included in the sales price of goods. Recipients of goods can either reuse the pallet or return it for reuse via a CP-registered pallet manufacturer/ reconditioner. Jayant Packing Industry has been a registered manufacturer since the start of the CP system, and also offers repairs.
CP 6 to 9 are pallets with two levels, frames or windows. Their construction makes them more stable than CP 1-5.
Product Specifications
30 +
CLIENTS
200 +
COMPLETED PROJECTS
25 +
YEARS EXPERIENCE
25 +
AWARDS
Copyright © Jayant Packing. All rights reserved.
Designed by: Beak Media
